Projets
Quelques exemple de réalisations récentes
Maison traditionnelle normande
Nous avons récemment réalisé un mesurage complet pour un projet de réhabilitation et d’extension, incluant la création de plans de niveaux, de coupes, de façades et de toiture. Ce processus a commencé par un relevé précis de l’existant, permettant de bien comprendre la structure initiale. Ensuite, nous avons élaboré des plans détaillés qui reflètent fidèlement les dimensions et les caractéristiques de chaque élément. Ces documents servent non seulement de base pour les travaux de réhabilitation, mais également pour l’extension projetée, garantissant une intégration harmonieuse entre l’ancien et le nouveau. Notre engagement envers la précision et la qualité assure ainsi le succès de ce projet complexe.



Maison pavillonnaire
Mesurage complet et creation des plans de niveaux, coupe et façades pour un projet de réhausse de toiture.



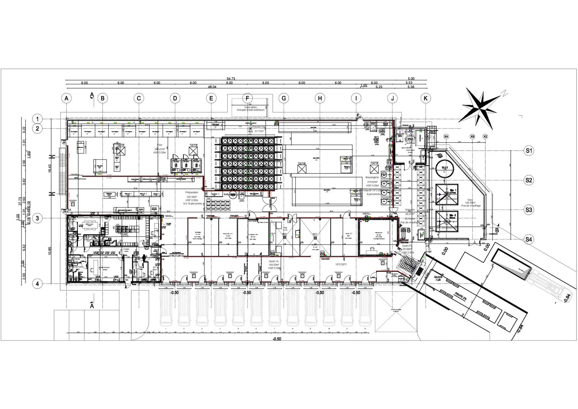
Plans DCE
Nous collaborons avec des bureaux d’études en ingénierie pour la création de plans de DCE (Dossier de Consultation des Entreprises), en veillant à ce que chaque document soit précis et conforme aux exigences techniques. Cette étape cruciale garantit que tous les aspects du projet sont clairement définis, facilitant ainsi le processus de consultation des entreprises. En outre, nous assurons un suivi rigoureux des mises à jour des plans, en intégrant les modifications nécessaires tout au long du projet. Cette approche proactive permet de maintenir une documentation à jour et cohérente, garantissant ainsi la conformité aux attentes des parties prenantes et la fluidité des échanges entre tous les acteurs impliqués dans le projet.



Plans
Relevé complet des niveaux et façades.


Gestion de patrimoine
Nous avons récemment réalisé un relevé et créé des plans d’immeubles et d’habitations collectives pour le compte d’un bailleur. Ce projet a impliqué une collecte minutieuse des données sur site, permettant de saisir les spécificités architecturales et les dimensions précises de chaque logement. À partir de ces relevés, nous avons élaboré des plans détaillés, facilitant ainsi la gestion et l’exploitation des biens immobiliers. Ces documents sont essentiels pour le bailleur, car ils permettent une meilleure planification des travaux de maintenance, des rénovations futures et une gestion efficace des espaces collectifs.


Relevé complet
Mesurage et création des plans de niveaux, coupes, façades, plan de toiture et plan de masse


